江心洲新添低密洋房,带下沉庭院!绿城华发G55最新消息!
首层架空、下沉式庭院,江心洲新豪宅要来了!
刚刚,江心洲中北G70地块规划设计方案出炉。根据规划设计方案,项目将打造为纯洋房社区,共计8栋建筑,其中6栋层高为8层,2栋层高为10层,总建筑面积约4.86万方。



G70地块于去年11月25日出让,由中北置业底价竞得,成交总价9.2亿,成交楼面价30518元/㎡。
目前,该幅地块已确认与前金基地产南京公司总经理徐波涛创立的——南京中堃置业有限公司合作,项目运营所需资金峰值预计11亿元,三家公司出资及持股比例:
中北置业认缴注册资本2,550万元,持股比例51%; 中堃置业认缴注册资本1,200万元,持股比例24%; 一九一二认缴注册资本1,250万元,持股比例25%。
地块位于江心洲岛中,临近仁恒置地广场,体量约2万方,容积率都只有1.5,限高35米,是江心洲少见的低密度社区。
江心洲作为南京独具特色的岛居板块,改善属性一直很强。目前板块内在售项目有6个,主要集中在岛南。
岛南的星叶栖悦湾(含装修包均价约4.76万/㎡)、奥体建设·江尚紫薇(含包约4.86万/㎡)、江心印园(含包约4.6万/㎡)、中海·江湾境(销许均价5.09万/㎡);岛北的水沐和瑞园(含包约4.8万/㎡);岛中的璞境(含包约5.35万/㎡)。
就在刚刚,万众瞩目的绿城华发·绿博园G55项目,再爆新动态!
项目位于河西中永隆城市展厅目前已经公开。

而据置业顾问最新透露,项目预计将于四月公开实景示范区,最快将于5月份首开!全南京的顶级富豪们可以提前关注了!

绿博园G55地块,去年10月份绿城以69亿元总价拿下G55地块,作为南京楼市历史第2地价,2023年南京地价与总价的双冠王,自然自出生起便备受市场瞩目!
去年12月初,华发官宣将与绿城联合开发G55地块。同月,绿城华发·绿博园G55项目规划出炉!
项目容积率仅2.2,规划打造14栋19-22层的高层住宅以及3栋商业。根据曝光的效果图,项目14栋住宅采用围合式布局,拥有约2万方的中央花园,将打造“200米*100米”的中央景观轴!给观者以“栋栋皆楼王”的尊崇观景体验!

项目西侧四栋楼拥有得天独厚的江景和绿博园景观。中部六栋楼则被约2万方的中央花园“簇拥”。东侧四栋楼也将独享静谧安然的氛围。
据悉,项目首层均为架空层,共计约8000㎡的空间体量,同时楼栋之间还有风雨连廊进行连接,绝对顶豪级配置!

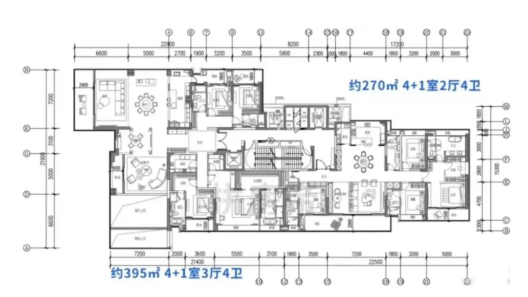
在户型设计上,项目主力户型建面约205-395㎡,还将打造建面约610㎡的顶层复式。
在具体的户型细节上,以建面约395㎡的超级大平层户型图为例为例(实际以开发商公布为准),打造约7米的客餐厅挑高设计,刷新传统大平层认知!还配置观景大阳台,可以直接观赏到绿博园和远眺江景!

作为绿城深耕南京打造的首个现代作品,绿城华发·G55项目将采用近乎纯玻璃立面(大面积转玻璃)搭配简洁线条的设计,营造出超高的窗墙比!

城南小行新增一幅低密宅地,就在小行万科朗拾旁边!
近日,南京市规划和自然资源局发布《中国(南京)软件谷东片区控制性详细规划》MCd060-05规划管理单元图则修改(批后公布)。

该幅地块东至西春路,南至绕城公路,西至凤台南路,北至软件大道。现状为空地,部分用地作为临时停车。
修改内容如下:
调整前:该地块为商办用地,容积率≤4.0,建筑密度≤45%,控制高度≤120米,绿地率≥20%;

调整后:为二类居住用地,容积率为≤1.2,建筑密度≤30%,控制高度≤30米,绿地率≥30%。

这也意味着,小行板块要迎来一幅低密纯宅地!从容积率以及控制高度来看,未来极有可能打造为低密洋房产品。
目前小行板块在售项目仅越秀天和,项目共计三栋楼,是板块内首个科技住宅,在售1、3号楼,户型建面约110、143㎡,销许均价约47307元/㎡。

同时,板块内还有已交付的仁恒城市星光,已售罄的万科朗拾一、二期,周边生活氛围醇熟。
此外,九龙湖片区也预计新增一幅宅地。
据南京市规划和自然资源局发布的《南京市江宁区九龙湖片区控制性详细规划》NJNBd070-06规划管理单元图则修改(公众意见征询),拟调整该幅地块的用地性质。

地块北至清水亭西路、东至双龙大道、南至中兴街、西至长亭街,总用地面积约21.78公顷,现状主要为商业、办公、工业企业及部分居住用地。

现拟将该幅地块调整为二类居住用地,地块紧邻3号线九龙湖地铁站,出行方便,区位优势明显。

值得注意的是,地块配建的幼儿园、小学、基层社区中心位置也有所调整,用地面积也变大了,小学规模由36班调整为24班。
二类居住用地容积率为≤2.4,建筑密度≤20%,高度≤80米,绿地率≥30%;
基层社区中心容积率为≤1.5,建筑密度≤50%,高度≤24米,绿地率≥20%;
幼托用地容积率为≤1.1,建筑密度≤35%,高度≤15米,绿地率≥35%;
小学用地容积率为≤1.2,建筑密度≤35%,高度≤24米,绿地率≥35%;

调整后↓

九龙湖板块已有7年没有宅地出让,急需新房源上市解渴。片区内上一次出让的地块是2017年的金隅紫京云筑和弘阳悦禧苑。
写在最后:
近期不少项目到访量明显增高,售楼处渐渐恢复至人声鼎沸。虽然暂时还未有特别爆火的现象的现象出现,但热度整整渐渐起来,“小阳春”值得期待。随之而来的,南京豪宅市场中的“新面孔”也逐渐活跃。
今年南京的重量级豪宅从立面、户型、园林、装标等切面均极致内卷,展现出极高的水准,南京乃至整个长三角的富豪们盯好了!